
Zum Mieten
Böblingen 71034
1.074,00 € Kaltmiete zzgl. Nebenkosten
Böblingen, 71034
ca. 77 m²
2
1
Ihr neues Zuhause wartet auf Sie! 3-Zimmerwohnung in Böblingen
Ihr neues Zuhause wartet auf Sie! 3-Zimmerwohnung in Böblingen















1.074,00 € Kaltmiete zzgl. Nebenkosten
Böblingen, 71034
ca. 77 m²
2
1

© 2025 Immobilien Kikas • Impressum
Wohnfläche
ca. 77 m²
Objektnummer
MW3-47175
Nutzungsart
Wohnen
Vermarktungsart
Miete
Objektart
Wohnung
Objekttyp
Etagenwohnung
Baujahr
2009
Haustiere
Ja
Balkon
Ja
Warmwasser enthalten
Ja
Zimmer
3
Schlafzimmer
2
Badezimmer
1
Anzahl Balkone
1
Warmmiete
1.549,00 €
Davon
Kaltmiete
1.074,00 €
13.95 €/m²
Nebenkosten
385,00 €
Heizkosten
Heizkosten nicht in der Warmmiete enthalten
Kaution
3 KM
Energieausweistyp
Bedarfsausweis
Energieausweis gültig bis
19.05.2030
Energieeffizienzklasse
B
Endenergiebedarf
65 kWh/(m²a)
C
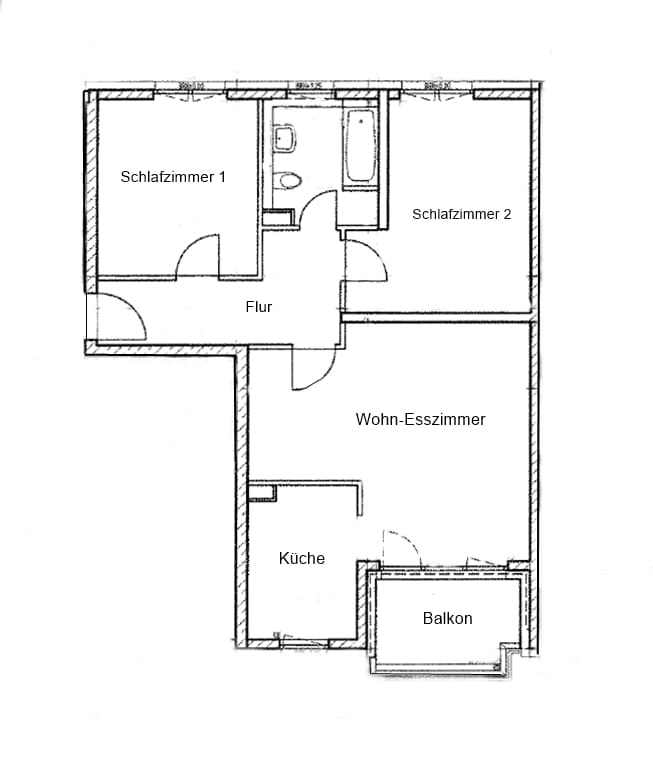
In der begehrten Wohnlage von Böblingen erwartet Sie eine helle und gut geschnittene 3-Zimmer-Wohnung, die keine Wünsche offenlässt. Ihr neues Zuhause wartet auf Sie! Diese moderne, barrierefreie Wohnung im 2. Stock, bequem per Aufzug erreichbar, überzeugt mit einem durchdachten Grundriss: zwei gemütliche Schlafzimmer, ein heller Wohn-/Essbereich mit offener Einbauküche (soll vom Vormieter übernommen werden) und ein stilvolles Badezimmer mit Badewanne. Der große Balkon bietet Platz, um entspannte Stunden im Freien zu genießen. Zusätzlich profitieren Sie von einem komfortablen Tiefgaragenstellplatz und einem praktischen Hausmeisterservice. Keller, Waschraum und Fahrradraum ergänzen das Angebot perfekt. Ab 01.12.2025 bezugsfrei – zögern Sie nicht und sichern Sie sich dieses Wohnhighlight!
Ausstattungsmerkmale: Kunststoff-Isolierfenster, Parkettböden, Fliesenböden, Fußbodenheizung, EBK, Badezimmer mit Wanne und WC, Balkon, Keller, Tiefgaragenstellplatz u.v.m.
Die Wohnung befindet sich in einer attraktiven Wohngegend von Böblingen mit zahlreichen Vorzügen: Nahgelegene Supermärkte, Drogerien und Geschäfte des täglichen Bedarfs. Gute Anbindung an den öffentlichen Nahverkehr und die Autobahn. Parks, Cafés und Naherholungsgebiete sind in wenigen Minuten erreichbar wie auch Schulen, Kindergärten und Spielplätze.
Böblingen, 71034
Es wird kein exakter Standort angezeigt.

Direkter Kontakt
Wir freuen uns auf Ihre Nachricht